Hochdruckfilter
Hochdruckfilter der PHA Serie eignen sich zur Filterung von Ölen und Schmiermitteln in Hydrauliksystemen. Der Filterkopf wird aus Gusseisen gefertigt und das Gehäuse besteht aus Carbonstahl, sodass solide Verschmutzungen effizient aus Hydraulikflüssigkeiten herausgefiltert werden können. Verschiedene Filtermaterialien werden je nach Anforderungen ausgewählt. Wirkdruckindikator und Umgehungsventil können optional eingebaut werden. Ein Rückschlagventil kann eingebaut werden, sodass ein Fluss in beide Richtungen garantiert ist, damit Verunreinigungen effizient herausgefilter werden können.
Der Hochdruckfilter ist leistungsstark, kann große Mengen an Verunreinigungen sammeln, hat wenig Druckverlust und filtert bei einem idealen Wert von β≥1000. Daher sind die Hochdruckfilter perfekt für Industriemaschinen geeignet.
Die Verschmutzungsanzeige misst den Druckverlust im gesamten Filter. Sobald ein voreingestelltes Maximum an Verunreinigungen gesammelt wurde, wird ein Warnsignal ausgesandt, damit rechtzeitig die Filterelemente ausgetauscht werden können. Werden die Filterelemente nicht ausgestauscht und erreicht der Differentialdruck den Öffnungsdruck des Umgehungsventils, so wird es automatisch geöffnet und die ungefilterte Flüssigkeit wird durch das Anschlusssystem geleitet.
- Betriebsdruck: Max. 42MPa
- Betriebstemperatur: -25℃~120℃
- Aktorendruck der Verschmutzungsanzeige: 0.5MPa
- Öffnungsdruck des Umgehungsventils: 0.6MPa
- Filterkopf: Gusseisen
- Filtergehäuse: Carbonstahl
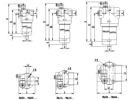
| Filtertyp | A | H | H1 | H2 | L | L1 | L2 | B | G | Gewicht (kg) |
| PHA 020... | G1/2 NPT1/2 M22×1.5 G3/4 NPT3/4 M27×2 | 208 | 165 | 142 | 85 | 46 | 12.5 | M8 | 100 | 4.4 |
| PHA 030... | 238 | 195 | 172 | 4.6 | ||||||
| PHA 060... | 338 | 295 | 272 | 5.2 | ||||||
| PHA 110... | G3/4 NPT3/4 M27×2 G1 NPT1 M33×2 | 269 | 226 | 193 | 107 | 65 | — | M8 | 6.6 | |
| PHA 160... | 360 | 317 | 284 | 8.2 | ||||||
| PHA 240... | G1 NPT1 M33×2 G1 1/4 NPT1/4 M42×2 G1 1/2 NPT1 1/2 M48×2 | 287 | 244 | 200 | 143 | 77 | 43 | M10 | 11 | |
| PHA 330... | 379 | 336 | 292 | 13.9 | ||||||
| PHA 420... | 499 | 456 | 412 | 18.4 | ||||||
| PHA 660... | 600 | 557 | 513 | 22.1 |
| Filtertyp | A | P | Q | C | T | Max. Druck | |
| PHA110... | F1 | 3/4" | 50.8 | 23.8 | M10 | 14 | 42MPa |
| PHA160... | F2 | 1" | 52.4 | 26.2 | M10 | 14 | 42MPa |
| PHA240... | F3 | 1 1/4" | 66.7 | 31.8 | M14 | 19 | 42MPa |
| PHA330... | |||||||
| PHA420... | F4 | 1 1/2" | 70 | 35.7 | M12 | 19 | 42MPa |
| PHA660... | |||||||

